空き家バンクとは・物件一覧
(R7-17)敷地内は広々、緑に囲まれた元旅館物件

外観1
外観2
周辺1
周辺2
玄関
部屋1
調理室
洗面所
風呂
トイレ
部屋2
ホール
部屋3
宴会場
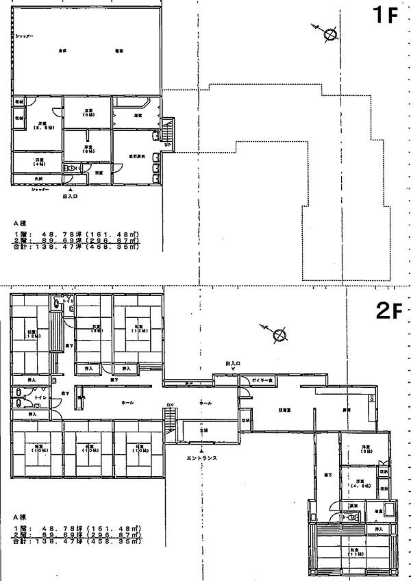
間取り図
上記写真をクリックすると拡大写真でご覧いただけます。
物件情報
| 物件番号 | (R7-17)敷地内は広々、緑に囲まれた元旅館物件 | 種別 | 売却 |
|---|---|---|---|
| 希望価格(売却) | 要相談 | 希望価格(賃貸) | |
| 所在地 | 那須烏山市上境 | ||
| 建築年 | 昭和52年 | 現況 | 空き店舗 |
| 土地面積 | 6654.00㎡ | 建物面積 | 458.35㎡ |
| 構造 | 木造2階建て | ||
| 補修の要・不要 | 大幅な改修必要 | 補修の費用負担 | 入居者負担 |
設備状況
| 電気 | 引き込み済み | ガス | プロパンガス |
|---|---|---|---|
| 風呂 | 灯油 | 水道 | 上水道 |
| 下水 | 浄化槽 | トイレ | 洋式水洗 |
| 駐車場 | スペースあり | 庭 | あり |
| その他 | |||
その他情報
| カテゴリー |
|
||
|---|---|---|---|
| 特記事項 | |||



